The present project - developed by the architects of ArqTitude and with the construction awarded to the company Esquadria e Simetria - is based on the construction of a contemporary development composed of single-family houses, located in Rua de Barrosão, in the parish of Vale de São Cosme, municipality of Vila Nova de Famalicão.
The development has a public space design with parking spaces and unobstructed views of the valley that surrounds the parish of Vale de São Cosme.
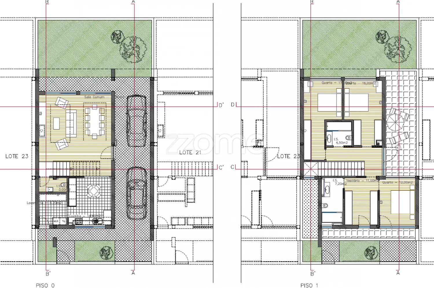
The three-bedroom villas privilege the alliance between the living spaces and the outside. Their large windows allow not only natural light to enter, but also a constant connection with the outside spaces (terraces, gardens and nature). The houses are generously sized, with finishings in fine materials that entail low maintenance costs. In addition, the project was designed so that the walls of the houses do not touch the neighbouring houses, thus providing greater comfort and convenience.
Its surroundings are distant from the centre of Vila Nova de Famalicão (7km) and the city of Braga (14km) and the residents can enjoy several services and all the amenities that these cities have to offer. The access to the A3 motorway is about 5km away.
City
Highway
Culture
Ground floor
1st Floor
With a unique preparation and experience in the real estate market, Zome consultants put all their dedication into giving you the best support, guiding you with the utmost confidence in the right direction for your needs and ambitions.
From now on, we will create a close relationship and listen carefully to your expectations, because our priority is your happiness! We will also communicate. A lot! Because it is important that you feel you are accompanied, and that we are always with you.
Leave your contact information below. We will contact you to clarify all your questions.
ZOMEIT LDA - AMI 17432




