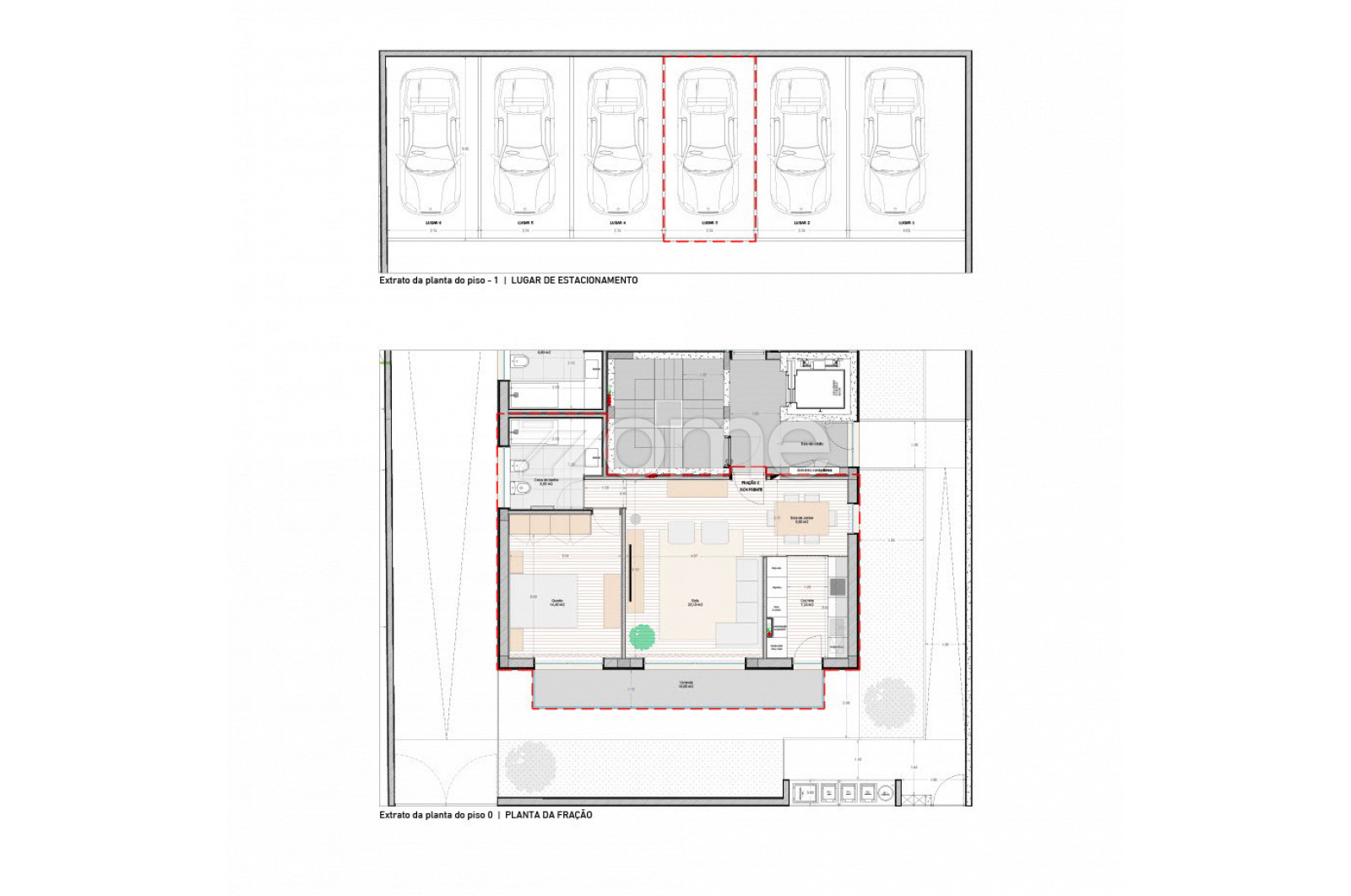
Exclusive residential development consisting of only 6 units, all with outdoor space and garage, located near the Porto university campus.
Detached building, with two apartments per floor served by an elevator, comprising 4 units of T1 and 2 duplex T2 units. Brand new apartments with very generous living areas, featuring a heat pump for water heating and air conditioning in all rooms, electric blinds, fully equipped kitchen, high-quality finishes, and a layout tailored to a practical and modern lifestyle. All apartments come with a parking space and their own outdoor area: patio, balcony, or terrace.
Situated in a predominantly residential area, Rua Dr. Campos Monteiro is just 140 meters away from the city limits of Porto.
City
Highway
Culture
Commerce
Living in Matosinhos offers numerous advantages that captivate residents and visitors alike. Located on the outskirts of the city of Porto, you reside next to a cultural treasure trove with its historical architecture, picturesque cobblestone streets, and a welcoming atmosphere that reflects the hospitable spirit of the people of Porto. Moreover, the cuisine is a true delight, featuring traditional dishes like the famous francesinha and the globally renowned Port wine. Proximity to the sea provides stunning beaches and water activities, while the vibrant nightlife and rich cultural scene ensure entertainment for all tastes. With a cost of living that is affordable compared to many European cities, Matosinhos is an attractive choice for those seeking quality of life, history, culture, and natural beauty.
With a unique preparation and experience in the real estate market, Zome consultants put all their dedication into giving you the best support, guiding you with the utmost confidence in the right direction for your needs and ambitions.
From now on, we will create a close relationship and listen carefully to your expectations, because our priority is your happiness! We will also communicate. A lot! Because it is important that you feel you are accompanied, and that we are always with you.
Leave your contact information below. We will contact you to clarify all your questions.
ZOMEIT LDA - AMI 17432





